Easy List Realty Ltd. — Canada's #1 FLAT FEE Brokerage • DIY MLS® Services
Easy List Realty

House For Sale in:
Burlington, ON

193 Pine Cove Road

Price: $1,790,000

Pine Cove Privacy

Questions? Want to book a showing?

Buyer Agent Friendly

The owner is willing to negotiate commission with any real estate agent who brings an acceptable offer from a qualified buyer.

House For Sale - 193 Pine Cove Road, Burlington, ON
3
Bedrooms
3
Bathrooms
1925
Square Feet
Other
Built in
1964
$6,045
Annual Taxes
6500 sq ft
Lot Size
Jump to Photo Gallery

Description

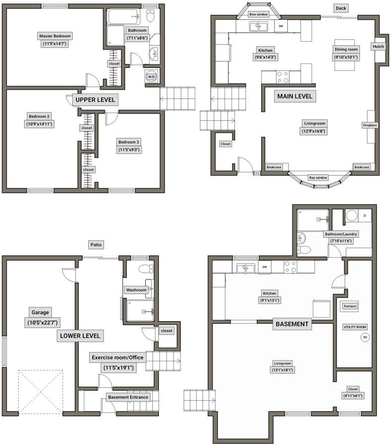
  • This detached home is located in South Burlington, steps to the lake, minutes from downtown, in the prestigious community of Roseland with several sought after schools nearby, as well as multiple parks, trails and waterfront.

  • The home features a spacious family room with a cozy fireplace, and built-in bookshelves. The ground floor walkout room is set up as a gym, but can be used as a living room or games room. Adjacent to this room, there is a 3-piece washroom with heated floor and heated towel rack.

  • Three bedrooms, a 4-piece washroom, and a washer/dryer closet complete the upstairs living space. The spa-like bathroom showcases a shower with body jets and a jacuzzi tub.

  • The fully-finished basement hosts an in-law suite with a separate entrance. This studio apartment includes a kitchen with a standard sized fridge and stove and a 3-piece washroom with washer and dryer.

  • The backyard features a hot tub, outdoor shower and multilevel deck and patio. The custom made shed provides ample storage. This private outdoor oasis is hardscaped throughout, with the right balance of greenery and privacy which can be enjoyed year round. A programmable irrigation system for easy maintenance keeps the individual gardens blooming.
  • The extended driveway provides parking for up to 6 cars.
  • Solar panels provide additional income.

Additional Details

MLS® Number: 40815808
Property Type: House
Year Built: 1964
Postal Code: L7N1W1
MLS® Link: View on REALTOR.ca
FSBO ID: 585766